Small Home 60

A thoughtful, efficient, 1 bed, 1 bath, 60 m² home designed for comfort, function and climate responsiveness in Climate Zone 6.

This is more than a floor plan. It’s a complete concept package to help you understand, adapt and build a home that works well in Australia’s southern climates.

This plan suits singles or couples looking for a compact main dwelling, or anyone wanting to add an ancillary dwelling to an existing property.

Why this plan?

Most small home plans aren't designed for their climate.

This one is. You get a preliminary 7.8-star energy performance using standard, affordable materials, no expensive upgrades required.

The layout is functional and liveable, not just efficient on paper. You also get enough detail to move forward confidently with a builder or draftsperson.

A custom concept design costs several thousand dollars. Small Home 60 gives you a well-resolved, climate-responsive starting point for a fraction of that.

A$450 + GST

What makes this design different

Designed specifically for Climate Zone 6 (including Denmark, WA and other southern regions across Australia), this home achieves a preliminary 7.8-star energy rating using affordable, standard specifications. No complex or high-cost materials required.

The performance comes from:

  • Careful orientation

  • Passive solar principles

  • A narrow, light-filled layout

  • Thoughtful storage and circulation

To achieve good solar passive performance, the home should ideally be oriented within 15° of true north. The design principles shown are suited to Climate Zones 5 - 8.

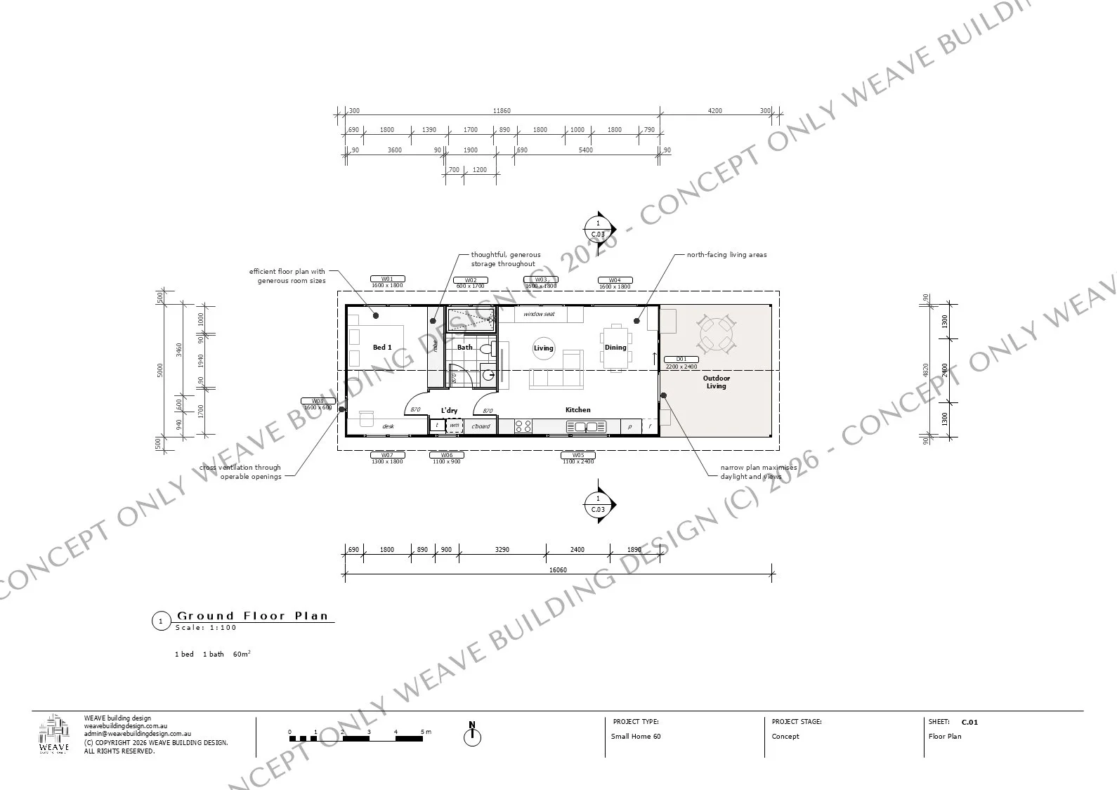
The layout includes one bedroom, bathroom, laundry, open-plan living/kitchen/dining and undercover outdoor living area. High ceilings, generous storage and a built-in window seat help the 60 m² footprint feel spacious and liveable.

The design fits within WA’s 70 m² ancillary dwelling allowance and most other states’ 60 m² limits.

What’s included

Concept drawing set (5 pages, dimensioned PDF)

  • Floor plan

  • Elevations

  • Section

  • 3D view

  • Detailed design notes including building specifications to achieve 7.8 star performance in Climate Zone 6

(Final energy rating will depend on site location and orientation.)

Getting Started Guide – from plans to permit

  • Clear steps for adapting the design to your site

  • What’s required for building approval

  • How to work with a builder or draftsperson

Additional guides

  • Designing & Constructing an Energy Efficient Home guide

  • Designing & Constructing a Healthy Home guide

  • Resources

Digital resource hub

  • Access to all guides on Notion

  • Ability to duplicate the resource hub to organise your own checklist and notes

Licence

  • Single-use licence for one project, personal use only.

  • The design may be adapted with the help of a designer, builder or consultant to suit your site.

What this package gives you

A professional starting point you can confidently take to:

  • A builder

  • A draftsperson

  • A building designer

The dimensions and specifications are detailed enough for site adaptation without the cost of full custom design.

Important note

This is a concept-level package. Site-specific work will still be required before construction, including:

  • Site placement and orientation adjustments

  • Engineering

  • Final energy rating confirmation

  • Permit drawings and approvals

The Small Home 60 has an overall footprint of 16.06m long by 5m wide, including the undercover outdoor living area. Before purchasing, check that these dimensions can be accommodated on your site within your required setbacks. Your site may also have easements, BAL ratings, or other planning restrictions that affect placement.

Need help with site placement? I offer a Site Plan Service for $1,100 + GST to locate this plan on your site and prepare drawings for planning approval.

Email admin@weavebuildingdesign.com.au to get started.

Frequently Asked Questions

  • You'll receive the concept drawing set and Getting Started Guide by email. The guide walks you through everything from site placement and council requirements to engaging a builder and finalising your energy rating.

  • Not to purchase it, but you will need someone to help prepare the drawings required for council approval and building permit. This could be a draftsperson, building designer, or your builder's drafting team. If you'd like to work with me directly, I offer a Site Plan Service for planning approval for $1,100 + GST. Email admin@weavebuildingdesign.com.au to get started.

  • Yes. The dimensions and specifications are detailed enough for a draftsperson, building designer, or builder's drafting team to adapt to your site. If you'd like to work with me directly on adaptations, get in touch to discuss.

  • The design is optimised for Climate Zone 6, which covers much of southern Australia including Southwest WA, parts of Victoria, South Australia, and Tasmania. The design principles also suit Climate Zones 5 to 8. If you're unsure whether this plan is right for your location, feel free to get in touch before purchasing.

Small Home 60

A$450 + GST